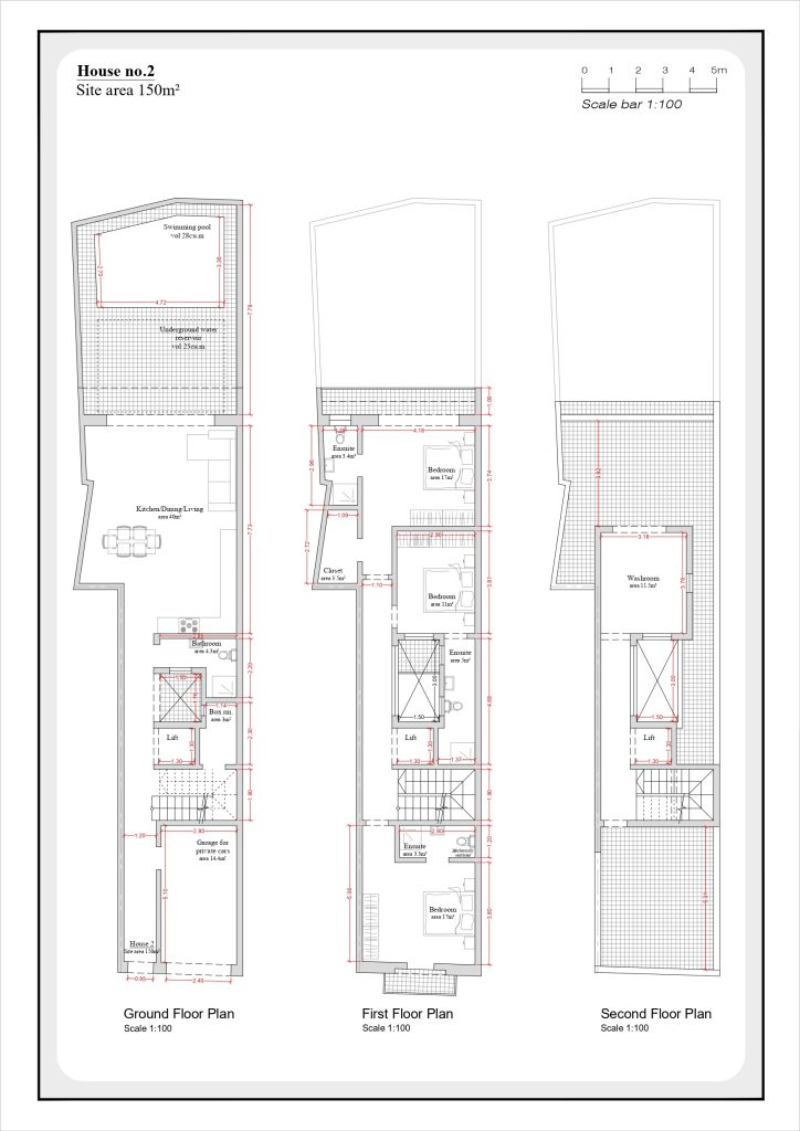
House 2 in Triq il-Wardija, Xaghra Gozo (UCA Area – No Tax).
Site area 150 m²
Layout consists of:
- Open plan Kitchen/Dining/Living
- 3 Bedrooms
- 4 Bathrooms
- Walk-in closet
- Box room
- Washroom
- Terrace @ second floor level
- 48 m² back yard with swimming pool
- One car garage Street level
Property is Freehold, and includes its airspace and sub-soil.
Construction to be completed by May 2026.
For more details contact us.





