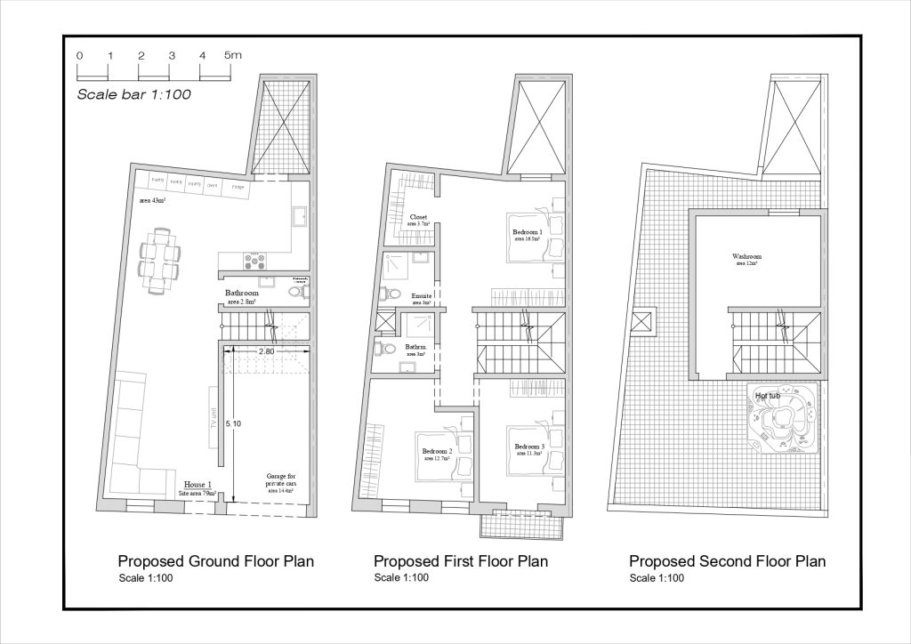
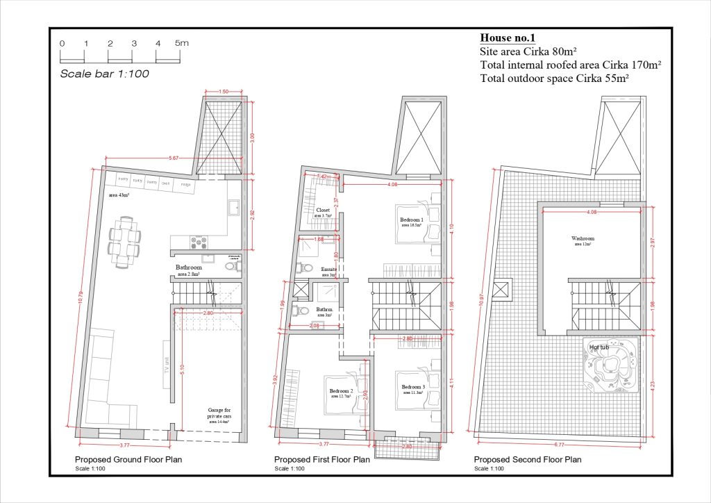
House 1 in Triq il-Wardija, Qala, Gozo (UCA Area – No Tax).
This house has a site area of cirka 80 m² (Total internal roofed area cirka 170 m² & outdoor space cirka 55 m²).
The layout of this house consists of:
- Open plan kitchen/dining/living
- 3 bedrooms
- 3 bathrooms
- Walk-in Closet
- Washroom & Large terrace @ second floor level
- Street level one car garage
Construction is to be completed by December 2025.
For more details contact us.





