Information
Price
Ground Floor:
Garage 1 – 60sqm – SOLD
Garage 2 – 44sqm – SOLD
Class 4B Shop (Hairdresser / Beautician) – 39sqm – SOLD
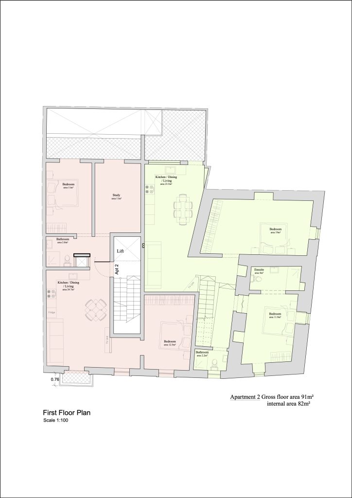
First Floor:
Own Entrance – Elevated Maisonette 1 – 2 beds, 2 bath – 124sqm – €190,000+ €5,000 common parts
Apartment 2 – 2 beds, study, 1 bath – 91sqm – €160,000 + €5,000 common parts
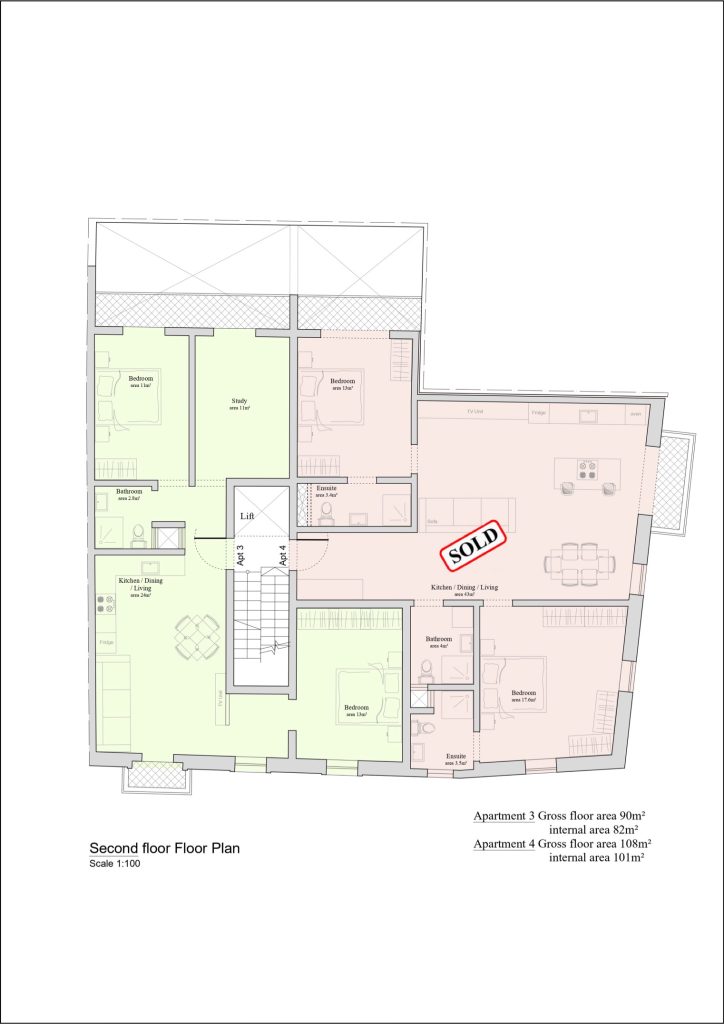
Second Floor:
Apartment 3 – 2 beds, study, 1 bath – 90sqm – €165,000 + €5,000 common parts
Apartment 4 – 2 bed, 3 bath – 108sqm – SOLD
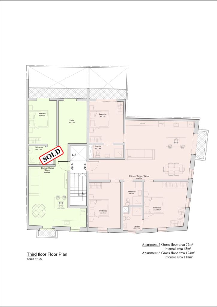
Third Floor:
Apartment 5 – 1 bed, study, 1 bath – 72sqm – SOLD
Apartment 6 – 3 beds, 3 bath – 124sqm – €205,000 + €5,000 common parts
Penthouse Level:
Penthouse 7 – 2 beds, study, 3 baths – 183sqm – SOLD
Completion of construction – May 2026
Completion of common parts – November 2026
3D Renderings
Plans
Views from Penthouse Level
Site Location












