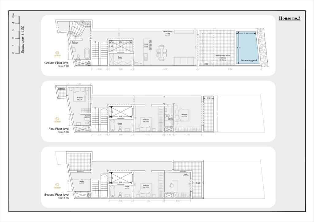
House 3, Xaghra, Gozo (UCA No tax).
Layout consists of:
- Open plan Kitchen/Dining/Living
- Pantry
- 4 Bedrooms
- 5 Bathrooms
- Study (or additional bedroom)
- Laundry
- Backyard with pool @ Ground floor level
Site area: 135 m²
(Total internal roofed area 240 m², and outdoor space 78 m²)
For more details contact us.







