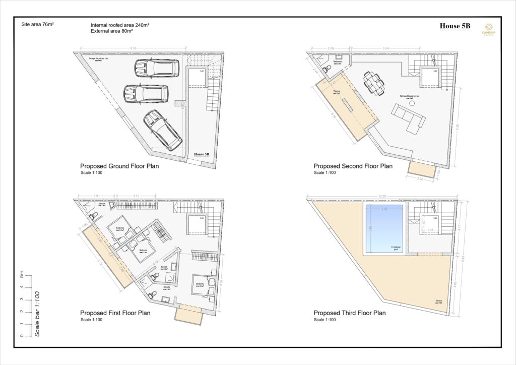
House 5B in Triq Santa Maria c/w Trejqet ta’ Kraba, Xewkija, Gozo.
Layout:
- Ground floor: 3 car garage street level, large entrance hall
- First floor: 3 bedrooms, 3 bathrooms
- Second floor: Open plan Kitchen/Dining/Living, 1 bathroom
- Third floor: Staircase & Lift shaft, large terrace and a Swimming pool – Including space were to install lift
Site Area: 76 m²
Internal roofed area: 240 m²
External area: 80 m²
For more details contact us.




