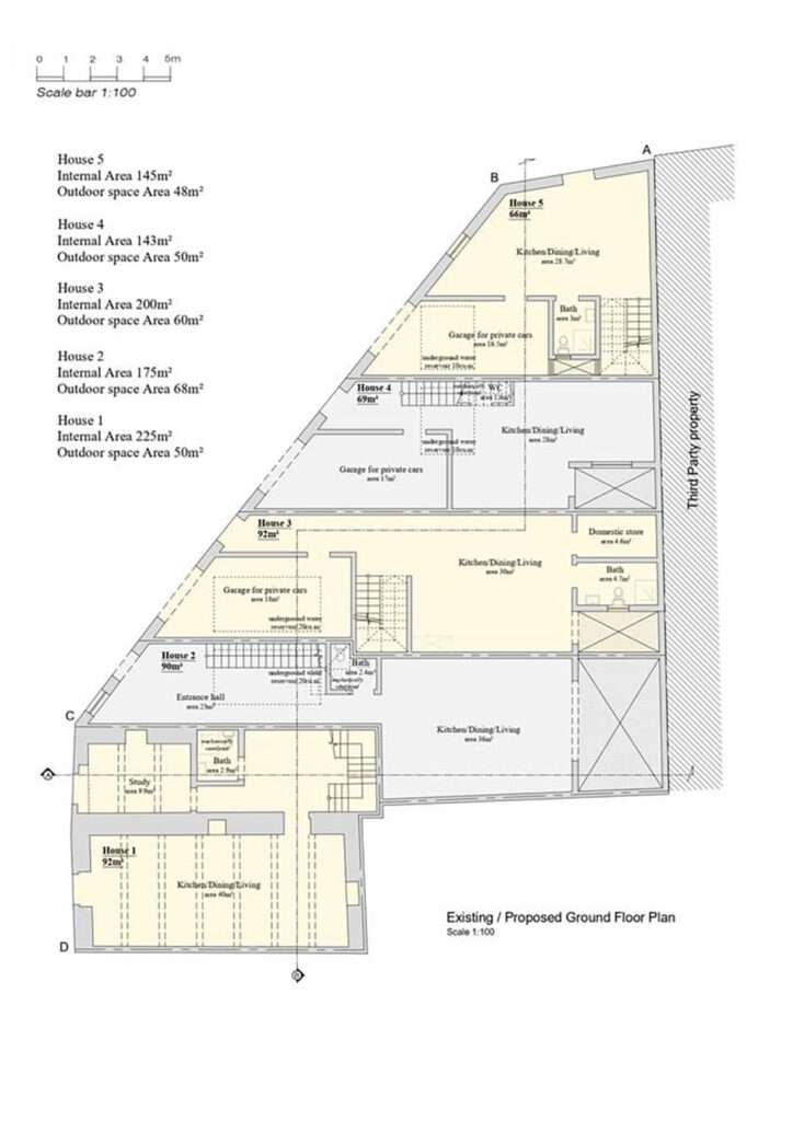
Xewkija Houses, Triq Santa Katerina c/w Trig tal-hamrija, Xewkija, Gozo.
Construction to Start June 2023 Construction to be completed by August 2024.
House 1 – SOLD
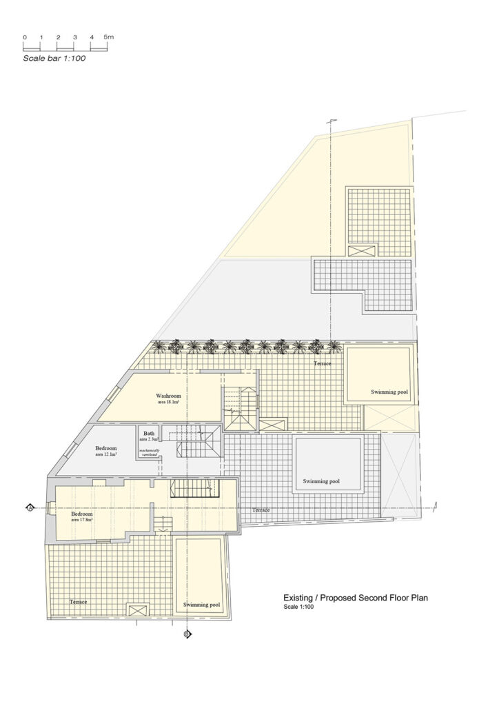
Open plan Kitchen/Dining/Living, 4 bedrooms, 4 bathrooms, Walk-in Closet, Study &
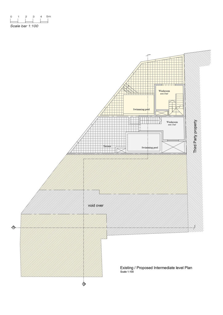
Swimming pool at roof level.
House 2 – SOLD
Open plan Kitchen/Dining/Living, large entrance hall, 4 bedrooms, 4 bathrooms, Walk-in
Closet, & Swimming pool at roof level.
House 3 – SOLD
Open plan Kitchen/Dining/Living, 4 bedrooms, 3 bathrooms, Walk-in Closet, Domestic store,
Swimming pool at roof level, & Garage for private cars internally connected to house.
House 4 – SOLD
Open plan Kitchen/Dining/Living, 3 bedrooms, 3 bathrooms, Walk-in Closet, Washroom &
Swimming pool at roof level, & Garage for private cars internally connected to house.
House 5 – SOLD
Open plan Kitchen/Dining/Living, 3 bedrooms, 3 bathrooms, Washroom & Swimming pool
at roof level, & Garage for private cars internally connected to house.
For more details contact us.












